Home Nieuwbouw Verbouwing Portfolio Design Webdesign Over Tin Contact

T!N design

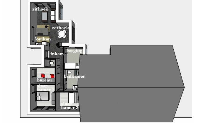
Verbouwing Meer

Aanbouw aan een woning - Meer (Hoogstraten)




3D_voorgevel

© T!N design